Wohngebiet "Buck III" Rödelsee Wohngebiet "Buck III" Rödelsee Wohngebiet "Buck III" Rödelsee

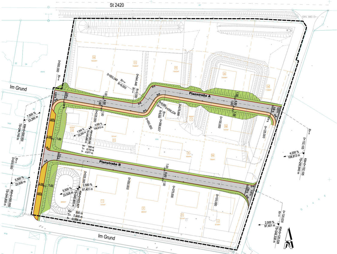
Erschließung von 15 Bauplätzen

Daten & Fakten

Fachbereiche:

Städtebau, Verkehrsanalyse

Auftraggeber:

VR Bank Kitzingen eG

Projektbeschreibung

Erschließung von 15 Bauplätzen mit 2 getrennten Erschließungsstraße und jeweilige beidseitige Anbindung an bestehende Straßen. Erschließung bestehend aus Entwässerung im Trennsystem, Wasser- und Gasversorgung sowie die Energie- und Telekommunikationsversorgung.

 

Zurück zur Übersicht

schließen

Home

    Story text

    link

    zurück

    Story

    Preisgekrönte Einbindung in die Landschaft

    Wasserwerk Taubertal

    zurück
    zurück
    zurück